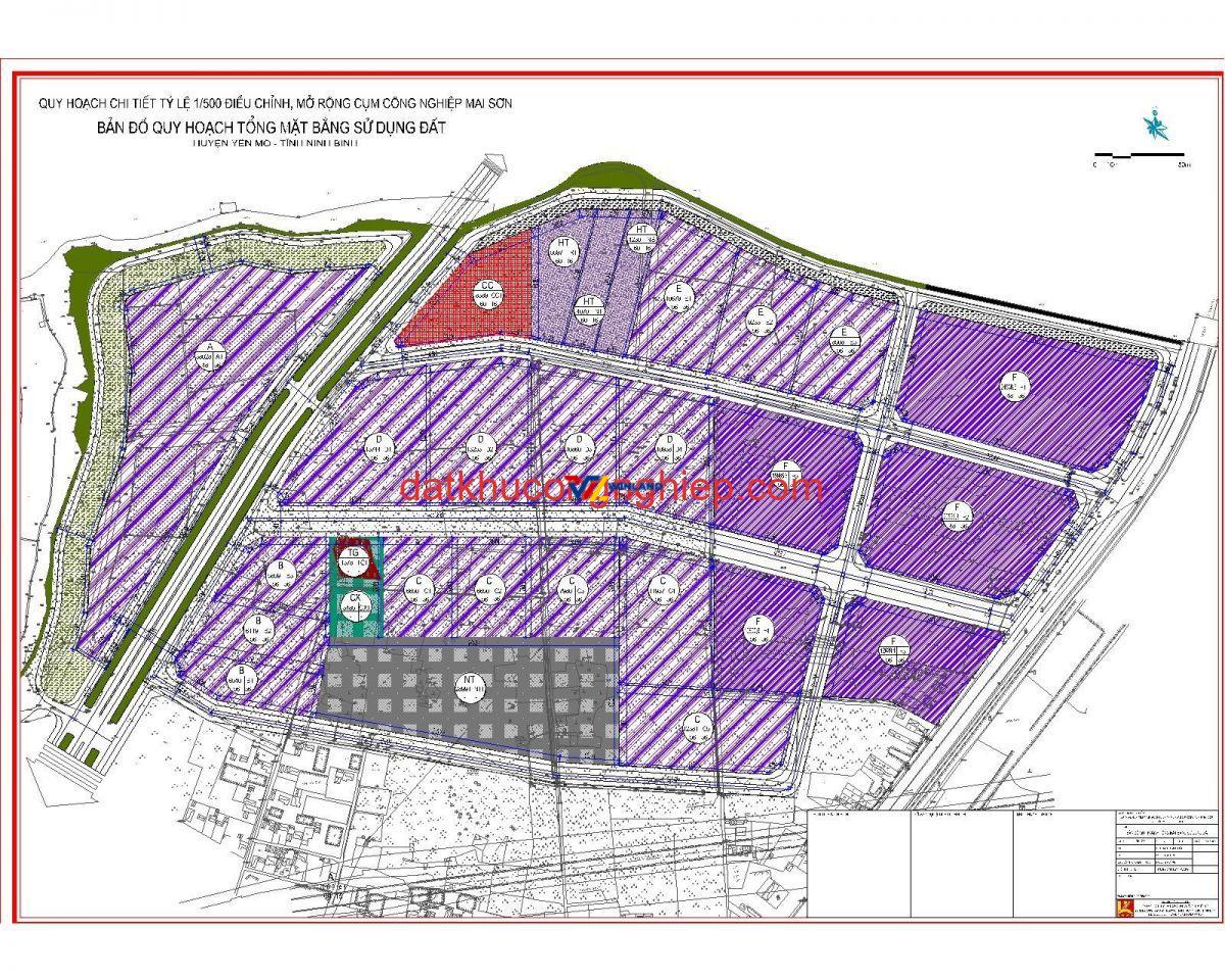
I. Tổng quan Cụm công nghiệp Mai Sơn, huyện Yên Mô, tỉnh Ninh Bình
– Địa chỉ: Xã Mai Sơn, huyện Yên Mô.
– Diện tích: 39,6 ha
– Lĩnh vực hoạt động: thu hút, phát triên các ngành công nghiệp: Dịch vụ cơ khí, vận tải; chế tạo, lắp ráp cơ khí; chế biến sản phấm nông nghiệp chất lượng cao; công nghiệp vật liệu xây dựng; công nghiệp sạch, kho bãi hàng hóa và các ngành công nghiệp khác không gây ô nhiễm môi trường tạo thành sự liên kết với các khu công nghiệp, cụm công nghiệp khác của tỉnh, …







